Bückeburg:
Bungalow mit Einliegerwohnung für die Pflege oder für die Enkelin
Objekt-Nr.: BUGELWOGR31675

Ansicht


Grundstücksfoto

Einrichtungsbeispiel

Einrichtungsbeispiel

Einrichtungsbeispiel

Einrichtungsbeispiel

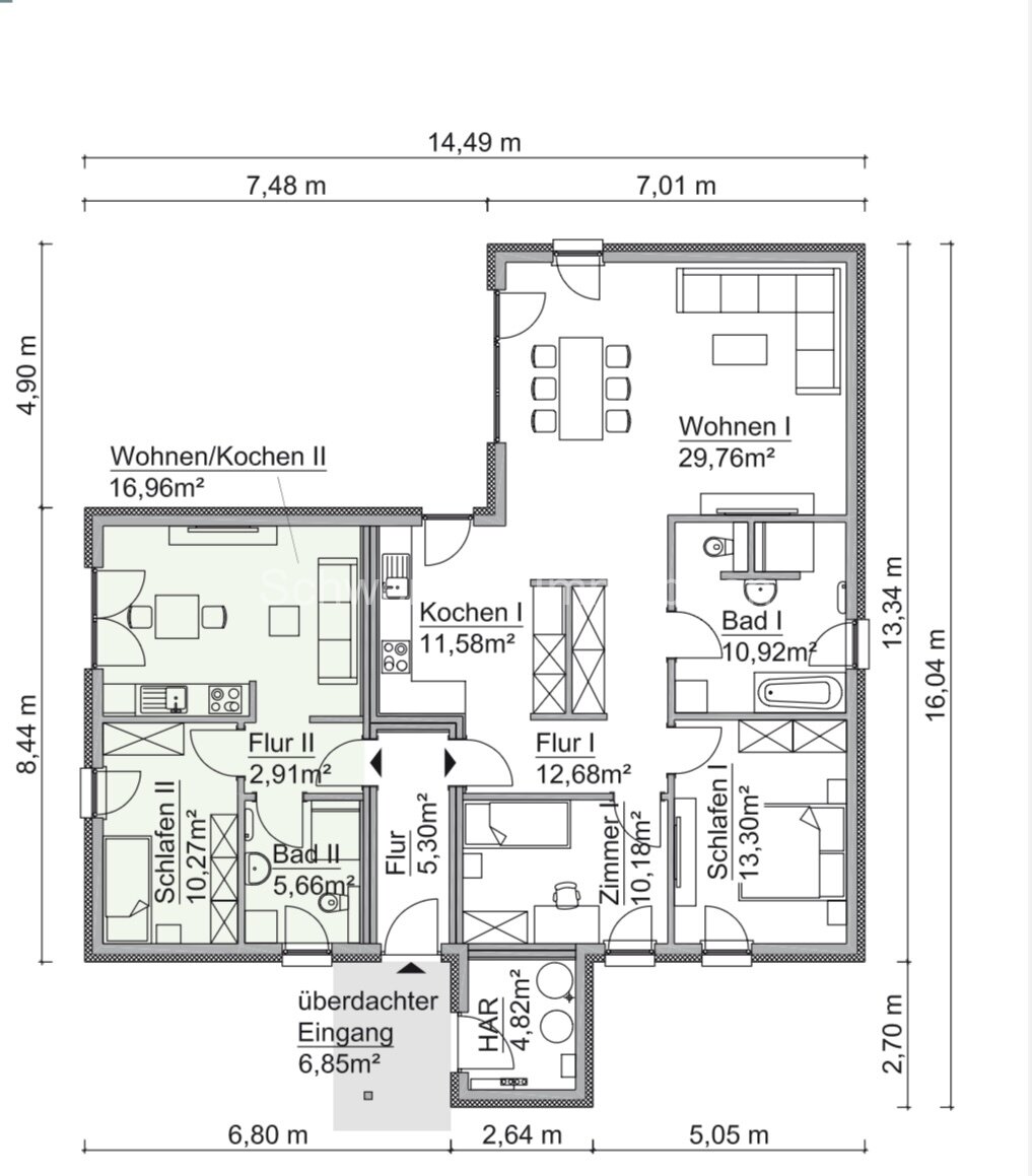
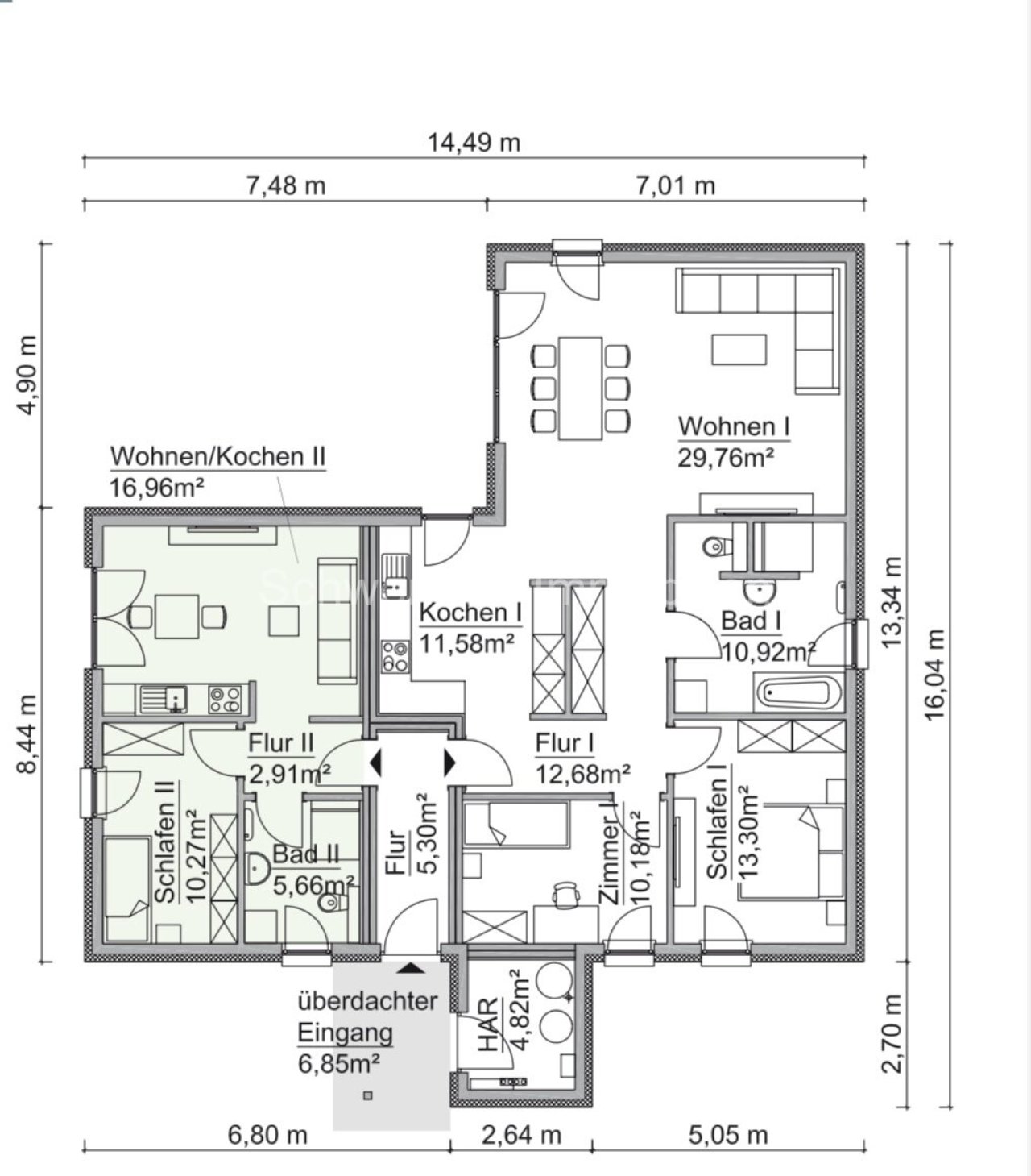
Grundriss EG

Einrichtungsbeispiel









Preis:
347.290 €
Wohnfläche ca.:
137 m²
Zimmeranzahl:
3
MITEINANDER BARRIEREFREI
Dieser Bungalow in Winkelform mit Einliegerwohnung verfügt über eine Zwei-ZimmerEinliegerwohnung. Die Hauptwohnung
bietet einen Drei-Zimmer-Grundriss inklusive Bad mit Dusche und Badewanne.
Das Besondere: Hier verfügen Jung
und Alt jeweils über separate Wohnbereiche, die über einen gemeinsamen Flur
erreichbar sind.
Bodentiefe Fenster in den Räumen sorgen für eine lichtdurchflutete gemütliche Atmosphäre
Alle Räume sind seniorengerecht und barrierearm gestaltet.…
Die Einliegerwohnung sorgt für ein rundum sorgloses Wohnen und bei Bedarf für die eigene Pflege zu Hause, oder für die Mieterin, die im Haushalt hilft.
Für den Bungalow fällt keine Käuferprovision an
Auf Wunsch planen, begleiten und organisieren wir für Sie das gesamte Bauprojekt mit allen Notwendigkeiten auch für das Grundstück wie z. B. Bauantrag, Vermessung, Beantragung der Versorger (Strom, Wasser, Abwasser), Außenanlagen oder Carport)
UNSER – BAUEN – LEICHT .-GEMACHT - SERVICEPAKET FÜR IHR BAUPROJEKT
Von der ersten Idee bis zum Moment, in dem Sie Ihre neue Haustür aufschließen - wir
begleiten Sie bei jedem Schritt Ihres Bauprojekts.
Wir übernehmen die vollständige Organisation und Koordination: von der Planung über
die Baugenehmigung, Vermessung und Erschließung (Trinkwasser, Strom, Abwasser) bis
hin zu den Außenanlagen, Pflasterarbeiten, dem Carport und vielem mehr.
Kurz gesagt: Alles, was für den erfolgreichen Abschluss Ihres Bauvorhabens bis zum
Einzug notwendig ist, wird von uns zuverlässig geregelt - damit Sie entspannt bauen und
sich auf Ihr neues Zuhause freuen können
Haustyp: Bungalow
Etagenanzahl: 1
Provisionspflichtig: nein
Nutzfläche ca.: 137 m²
Anzahl Schlafzimmer: 3
Anzahl Badezimmer: 2
Terrasse: 1
Einliegerwohnung: ja
Barrierefrei: ja
Seniorengerecht: ja
Qualität der Ausstattung: gehoben
Baujahr: 2026
Bauphase: Haus in Planung (projektiert)
Zustand: Erstbezug
Die von uns gemachten Informationen beruhen auf Angaben des Verkäufers bzw. der Verkäuferin. Für die Richtigkeit und Vollständigkeit der Angaben kann keine Gewähr bzw. Haftung übernommen werden. Ein Zwischenverkauf und Irrtümer sind vorbehalten. Abbildungen lönnen aufpreispflichtige Extras enthalten
Wir weisen auf unsere Allgemeinen Geschäftsbedingungen hin. Durch weitere Inanspruchnahme unserer Leistungen erklären Sie die Kenntnis und Ihr Einverständnis. Grundstücke werden teilweise von unseren Netzwerkpartner vermittelt. Hier können Maklerprovisionen für das Grundstück entstehen.
Das könnte Ihnen auch gefallen
Baubüro / Schwentker Immobilien
Frau Sandra Schwentker
Im Bastaugrund 21
32427 Minden
Telefon: 01717372105






































