Porta Westfalica Holzhausen:
Einfamilienhaus 155qm mit Grundstück / 5 Zi / monatl. Rate 1.783,-- incl. Fördermittel Einbauküche / PV- Anlage / FB / WP / Ankleide
Objekt-Nr.: EFH15532457 /523

Ansicht


Einrichtungsbeispiel

Grundriss

Grundriss

Einrichtungsbeispiel

Einrichtungsbeispiel

Einrichtungsbeispiel








Preis:
443.250 €
Wohnfläche ca.:
155 m²
Grundstück ca.:
521 m²
Zimmeranzahl:
5
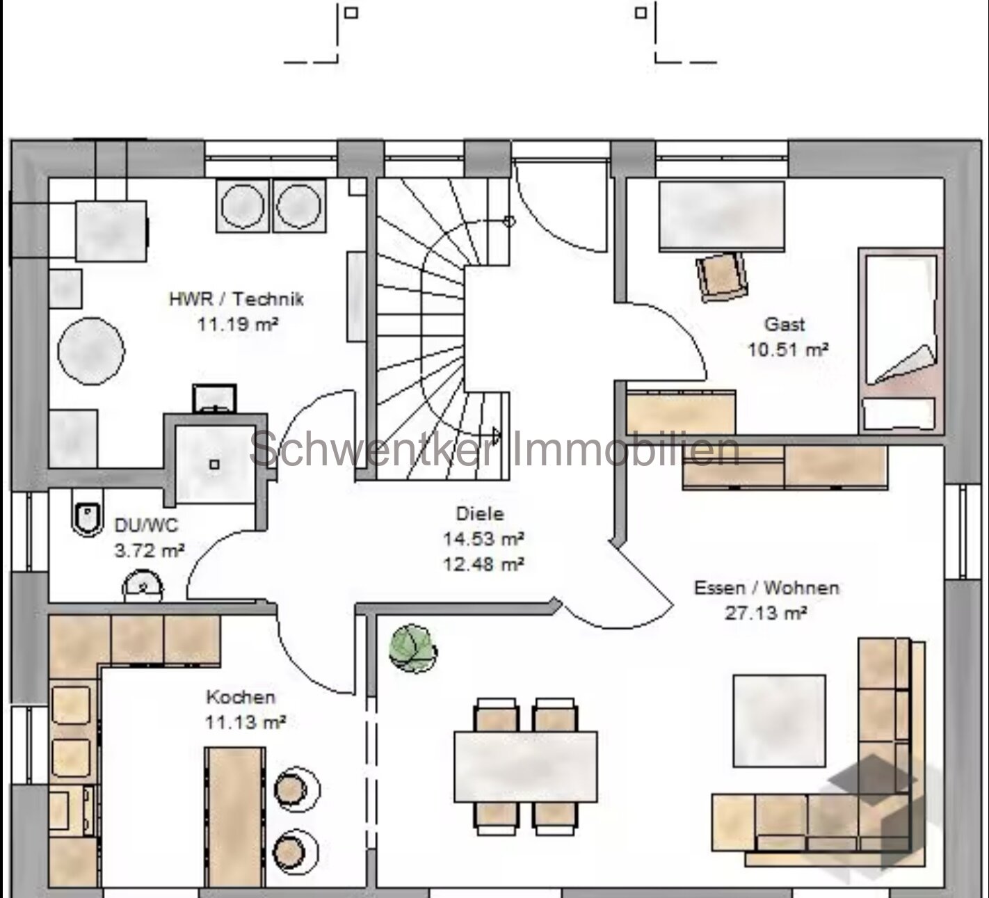
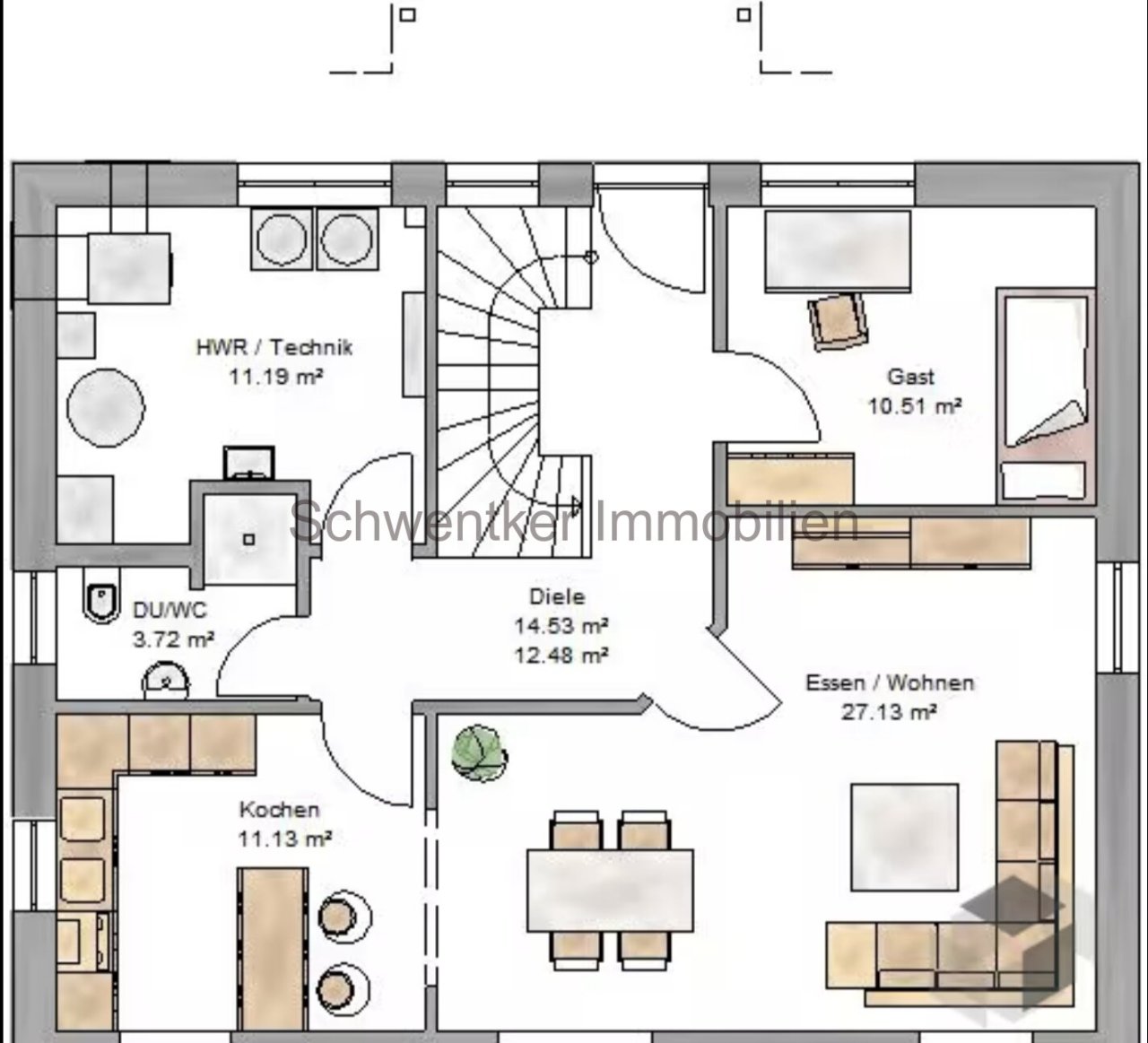
Dieses Haus lässt für die Familie keine Wünsche offen. Im Erdgeschoss erwartet dich ein großzügiger, heller und lichtdurchfluteter Wohn- und Essbereich mit bodentiefen Panoramafenstern, durch die man auf die Terrasse gelangt.
An diesen Wohn- und Essbereich schließt sich die Küche an, die entweder offen oder geschlossen gestaltet werden kann. Außerdem findest du im Erdgeschoss ein Duschbad, einen praktischen Hauswirtschaftsraum und ein Gästezimmer, das sich auch ideal als Homeoffice nutzen lässt.
Im Obergeschoss gibt es ein geräumiges Elternschlafzimmer mit angrenzender Ankleide, ein freundliches Familienbad, zwei Kinderzimmer und einen praktischen Abstellraum. Im Haus ist bereits eine Einbauküche integriert, und für optimale Energieeffizienz sorgen die Photovoltaikanlage, die Fußbodenheizung und die Wärmepumpe.
Haustyp: Einfamilienhaus
Etagenanzahl: 1
Provisionspflichtig: nein
Nutzfläche ca.: 149 m²
Küche: Einbauküche
Anzahl Schlafzimmer: 3
Anzahl Badezimmer: 2
Gäste-WC: ja
Qualität der Ausstattung: gehoben
Bauphase: Haus in Planung (projektiert)
Zustand: Erstbezug
Das Gesamtgrundstück ist ca. 1.046 qm groß und wird geteilt. Teilungs- und Vermessungskosten gehen zu Lasten des Käufers.
Die von uns gemachten Informationen beruhen auf Angaben des Verkäufers bzw. der Verkäuferin. Für die Richtigkeit und Vollständigkeit der Angaben kann keine Gewähr bzw. Haftung übernommen werden. Ein Zwischenverkauf und Irrtümer sind vorbehalten. Abbildungen und Fotos können aufpreispflichtige Extrasenthalten. Das Grundstück wird von einem unserer Netzwerkpartner vermittelt. Hier entsteht eine Maklerprovision.
Wir weisen auf unsere Allgemeinen Geschäftsbedingungen hin. Durch weitere Inanspruchnahme unserer Leistungen erklären Sie die Kenntnis und Ihr Einverständnis.
Das könnte Ihnen auch gefallen
Baubüro / Schwentker Immobilien
Frau Sandra Schwentker
Im Bastaugrund 21
32427 Minden
Telefon: 01717372105
32457 Porta Westfalica Holzhausen
Minden-Lübbecke
Nordrhein-Westfalen
