Hiddenhausen:
2 Zimmer Eigentumswohnung monatliche Finanzierungsrate 717,-- incl. Fördermittel in Hiddenhausen
Objekt-Nr.: ETW32120EGLI63/850

Ansicht


Einrichtungsbeispiel

Einrichtungsbeispiel

Ansicht

Einrichtungsbeispiel

Einrichtungsbeispiel

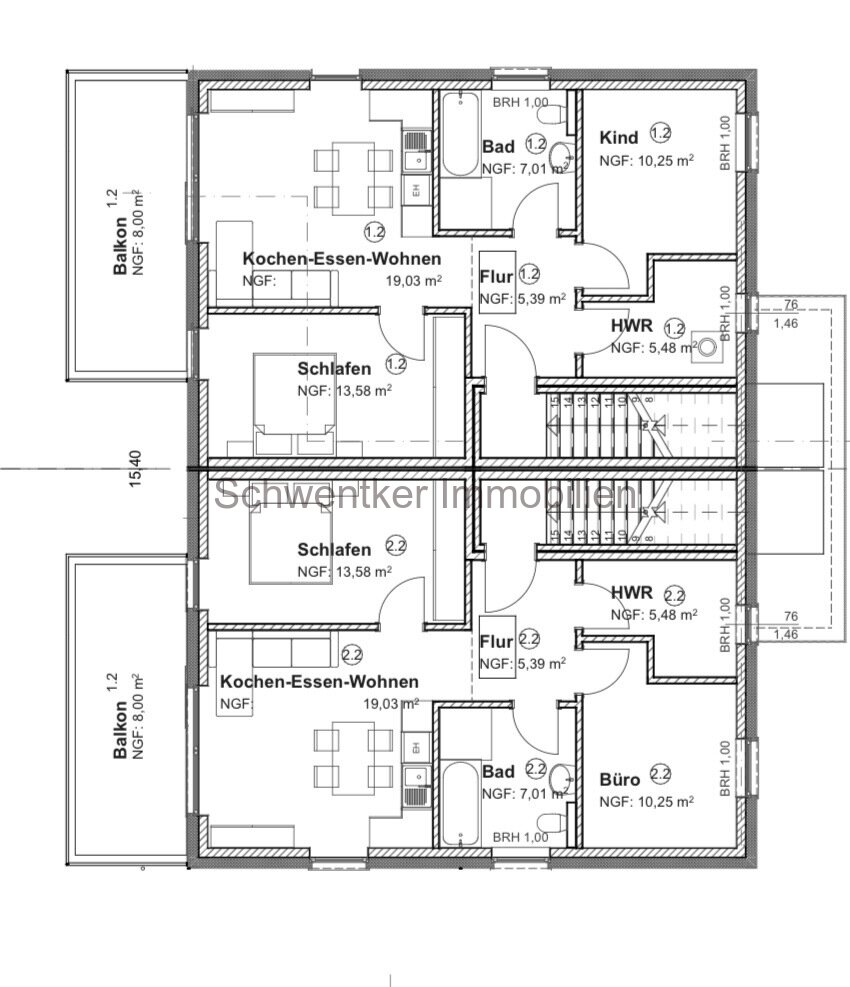
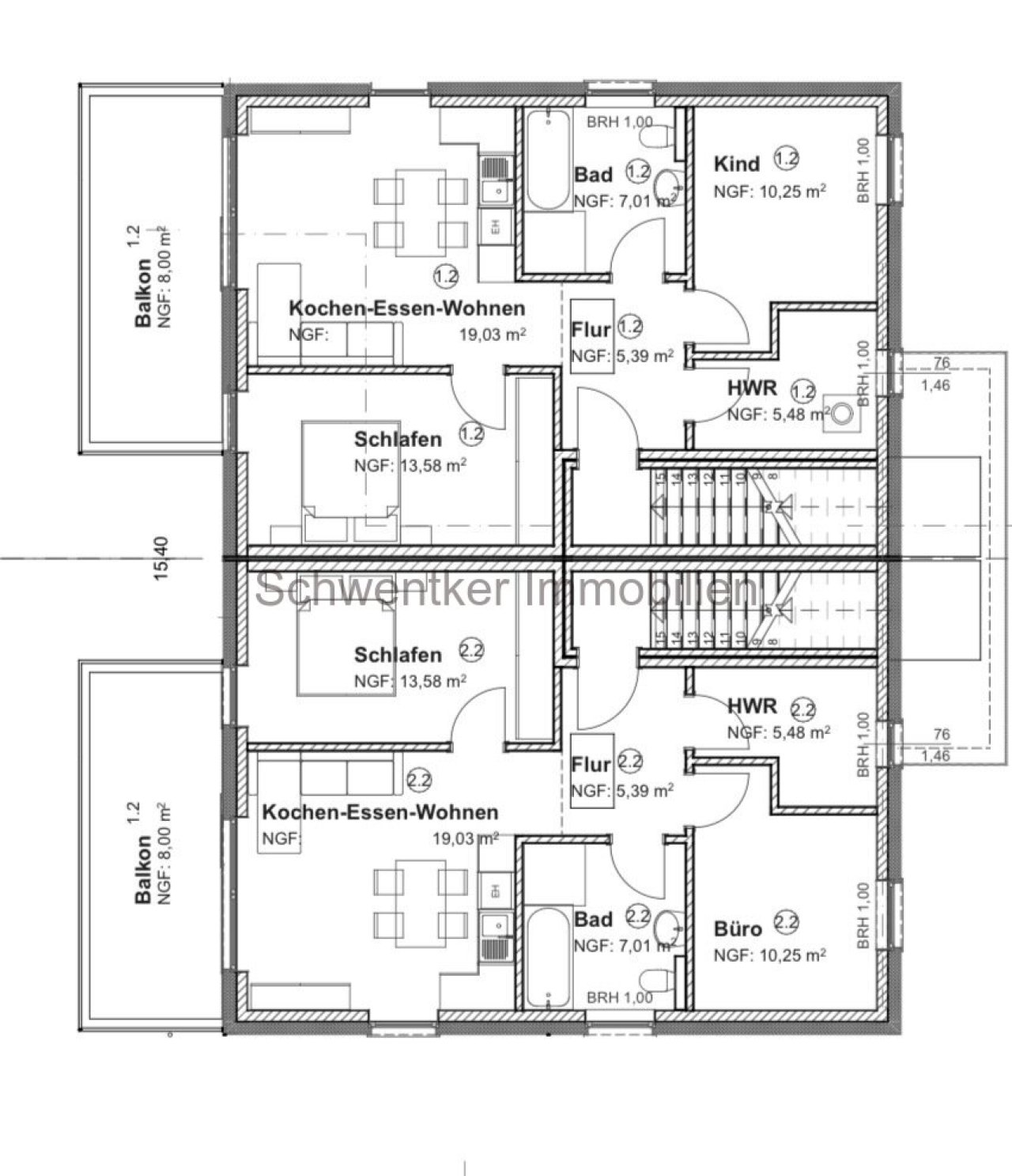
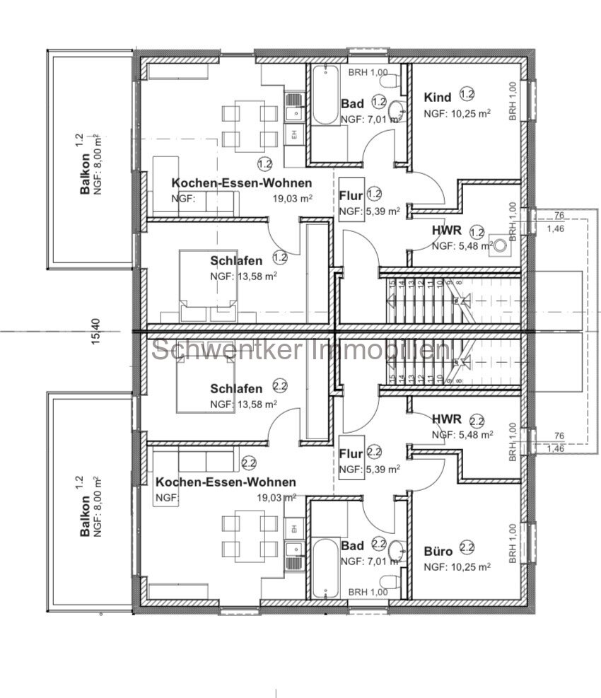
Grundriss Erdgeschoss

Grundriss Obergeschoss

Lageplan










Preis:
212.343 €
Wohnfläche ca.:
63 m²
Zimmeranzahl:
2
Diese altersgerechte 63-Quadratmeter 2 Zimmer Eigentumswohnung ( EG links) in Hiddenhausen ist die ideale Lösung für alle, die verkleinern möchten, ohne auf Komfort zu verzichten. Die Wohnung verfügt über einen großzügigen, lichtdurchfluteten Wohn-Ess-Bereich, der dank bodentiefer Türen direkten Zugang zur Terrasse bietet. Außerdem gibt es ein geräumiges Schlafzimmer, ein funktionales Bad, eine Abstellkammer, ein Gäste-WC und einen Hausanschlussraum. Der Flur verbindet alle Räume optimal. Für zusätzlichen Komfort sorgen die Fußbodenheizung, die Wärmepumpe und eine Photovoltaikanlage, die für eine hervorragende Energieeffizienz ( KFW 40 ) sorgt. Diese Wohnung ist perfekt für Singles, Paare und natürlich auch für ältere Menschen, die es bequem haben möchten. Und das Beste: Die monatliche Finanzierungsrate für diese Wohnung kann bei nur 717 Euro liegen.
Etage: 1
Etagenanzahl: 2
Provisionspflichtig: nein
Nutzfläche ca.: 59 m²
Küche: Einbauküche
Anzahl Schlafzimmer: 1
Anzahl Badezimmer: 1
Terrasse: 1
Gäste-WC: ja
Garten: ja
Barrierefrei: ja
Seniorengerecht: ja
Qualität der Ausstattung: gehoben
Zustand: Erstbezug
Für die Eigentumswohnung ist keine Käuferprovision fällig.
Bei der Berechnung der Finanzierungsrate handelt es sich um eine Beispielfinanzierung eines anderen Kunden für diese Wohnung und dient der Veranschaulichung.
Lassen auch Sie sich ein maßgeschneidertes Finanzierungsangebot machen.
Die von uns gemachten Informationen beruhen auf Angaben des Verkäufers bzw. der Verkäuferin. Für die Richtigkeit und Vollständigkeit der Angaben kann keine Gewähr bzw. Haftung übernommen werden. Ein Zwischenverkauf und Irrtümer sind vorbehalten. Ausführung kann von der Visualisierung abweichen. Fotos und Abbildungen können aufpreispflichtige Extras enthalten.
Wir suchen für unsere Kunden im Maklerbüro ständig Einfamilienhäuser, Doppelhäuser, Bungalows und Grundstücke.
Nutzen Sie unseren kostenlosen Servile für die Bewertung Ihrer Immobilie.
Schwentker Immobilien
Königstr. 132
32427 Minden
0171 73721056
Wir weisen auf unsere Allgemeinen Geschäftsbedingungen hin. Durch weitere Inanspruchnahme unserer Leistungen erklären Sie die Kenntnis und Ihr Einverständnis.
Das könnte Ihnen auch gefallen





































