Hille:
Doppelhaushälfte 108qm / 4 Zi / monatliche Finanzierungsrate 1.086,-- PV- Anlage / Einbauküche / Schlüsself. / FB / WP
Objekt-Nr.: DH108OGR32479

Ansicht


Einrichtungsbeispiel

Einrichtungsbeispiel

Ansicht

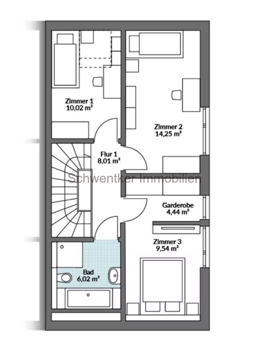
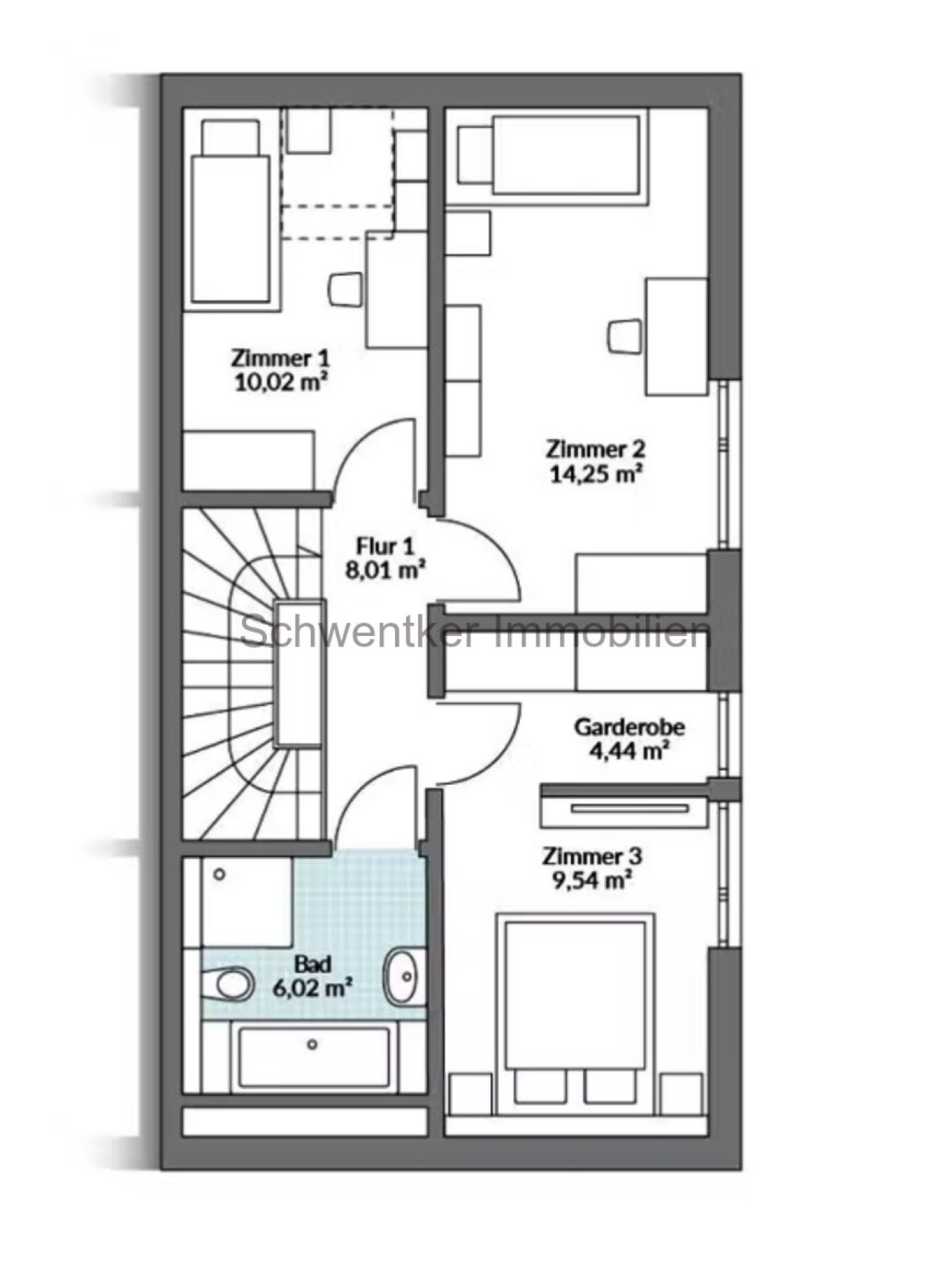
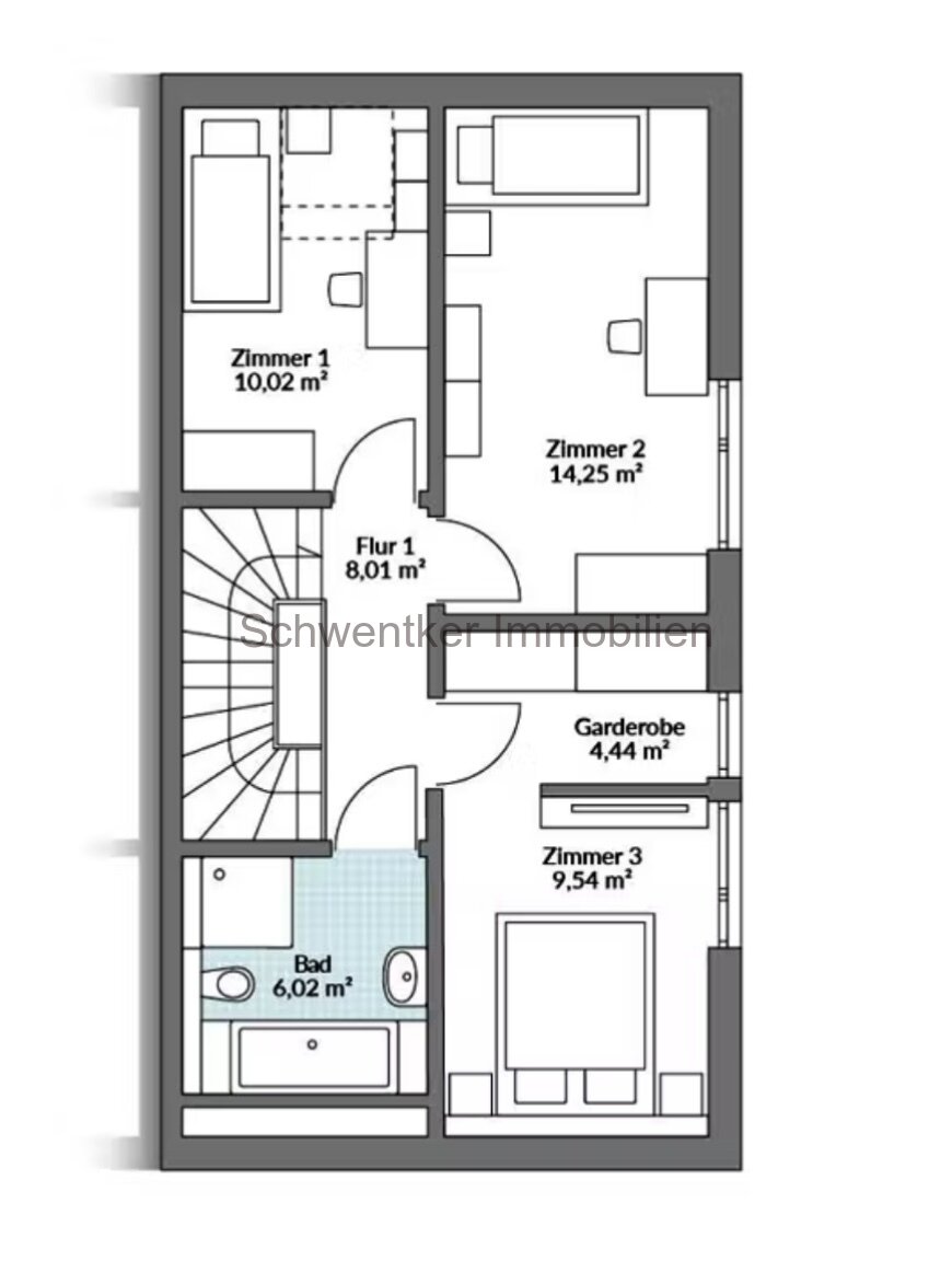
Grundriss

Grundriss

Einrichtungsbeispiel

Einrichtungsbeispiel

Einrichtungsbeispiel










Preis:
277.350 €
Wohnfläche ca.:
108 m²
Zimmeranzahl:
4
Diese Doppelhaushälfte bietet den perfekten Rahmen für das Familienglück. Im Erdgeschoss erwartet dich ein geräumiger, lichtdurchfluteter Wohn- und Essbereich dank der bodentiefen Terrassentüren, an den sich die Küche direkt anschließt.
Über einen kleinen Flur gelangt man praktisch zum Gäste-WC oder in den Hauswirtschaftsraum. Im Obergeschoss erwarten dich ein großzügiges Elternschlafzimmer mit einer Ankleide, zwei geräumige Kinderzimmer und ein freundliches Familienbad.
Damit du sofort einziehen und dich wohlfühlen kannst, ist das Haus bereits mit einer Einbauküche ausgestattet.
Für optimale Energieeffizienz sorgen eine Photovoltaikanlage, eine Wärmepumpe und eine Fußbodenheizung. Diese Doppelhaushälfte ist wirklich ein ideales Zuhause für eine junge Familie!
Haustyp: Doppelhaushälfte
Provisionspflichtig: nein
Nutzfläche ca.: 108 m²
Küche: Einbauküche
Anzahl Schlafzimmer: 3
Gäste-WC: ja
Qualität der Ausstattung: gehoben
Bauphase: Haus in Planung (projektiert)
Zustand: Erstbezug
Die von uns gemachten Informationen beruhen auf Angaben des Verkäufers bzw. der Verkäuferin. Für die Richtigkeit und Vollständigkeit der Angaben kann keine Gewähr bzw. Haftung übernommen werden. Ein Zwischenverkauf und Irrtümer sind vorbehalten. Abbildungen und Fotos können aufpreispflichtige Extras enthalten.
Wir weisen auf unsere Allgemeinen Geschäftsbedingungen hin. Durch weitere Inanspruchnahme unserer Leistungen erklären Sie die Kenntnis und Ihr Einverständnis.
Das könnte Ihnen auch gefallen
Baubüro / Schwentker Immobilien
Frau Sandra Schwentker
Im Bastaugrund 21
32427 Minden
Telefon: 01717372105
32479 Hille
Minden-Lübbecke
Nordrhein-Westfalen




































