.Hille:
Eine traumhafte Eigentumswohnung in Hille Oberlübbe im Zweifamilienhaus, großzügig, sonnig und familienfreundlich
Objekt-Nr.: ETWLHBEMF199OG

Ansicht




Ansicht

Ansicht

Ansicht

Ansicht

Ansicht

Ansicht

Ansicht

Ansicht

Lageplan

Ansicht

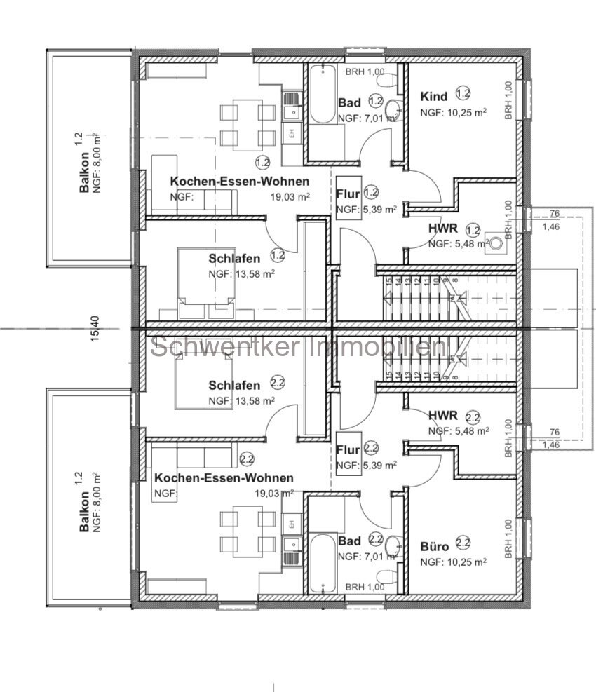
Grundriss















Preis:
280.029 €
Wohnfläche ca.:
100 m²
Zimmeranzahl:
3
Traumhafte Eigentumswohnung im Zweifamilienhaus – Großzügig, sonnig, familienfreundlich
Diese lichtdurchflutete Eigentumswohnung im 1. Obergeschoss eines gepflegten Zweifamilienhauses lässt keine Wünsche offen:
Ein großzügiger Wohn-Ess-Bereich mit angrenzender Küche bietet viel Raum für gemeinsame Stunden. Der sonnige Balkon lädt zum Entspannen ein und erweitert den Wohnbereich ins Freie.
Ein geräumiges Schlafzimmer, ein freundliches Kinderzimmer sowie zwei praktische Abstellräume bieten reichlich Platz für die ganze Familie
Etage: 1
Etagenanzahl: 2
Provisionspflichtig: nein
Nutzfläche ca.: 100 m²
Anzahl Schlafzimmer: 2
Anzahl Badezimmer: 1
Balkon: 1
Gäste-WC: ja
Garten: ja
Qualität der Ausstattung: gehoben
Zustand: Erstbezug
Die von uns gemachten Informationen beruhen auf Angaben des Verkäufers bzw. der Verkäuferin. Für die Richtigkeit und Vollständigkeit der Angaben kann keine Gewähr bzw. Haftung übernommen werden. Ein Zwischenverkauf und Irrtümer sind vorbehalten. Abbildungen können aufpreispflichtige Ausstattungen enthalten.
Wir weisen auf unsere Allgemeinen Geschäftsbedingungen hin. Durch weitere Inanspruchnahme unserer Leistungen erklären Sie die Kenntnis und Ihr Einverständnis.
Das könnte Ihnen auch gefallen
Baubüro / Schwentker Immobilien
Frau Sandra Schwentker
Im Bastaugrund 21
32427 Minden
Telefon: 01717372105
































